Shitet, Apartament 2+1+2, Crystal Lake Residence, Farke

Kontakto per cmimin

Detajet e pronës

Referenca

ELT60059

Apartament

Tipologji

2

Dhoma

2

Tualete

122

m 2

1

Dhoma Ndenje

1

Kuzhina

Pershkrimi

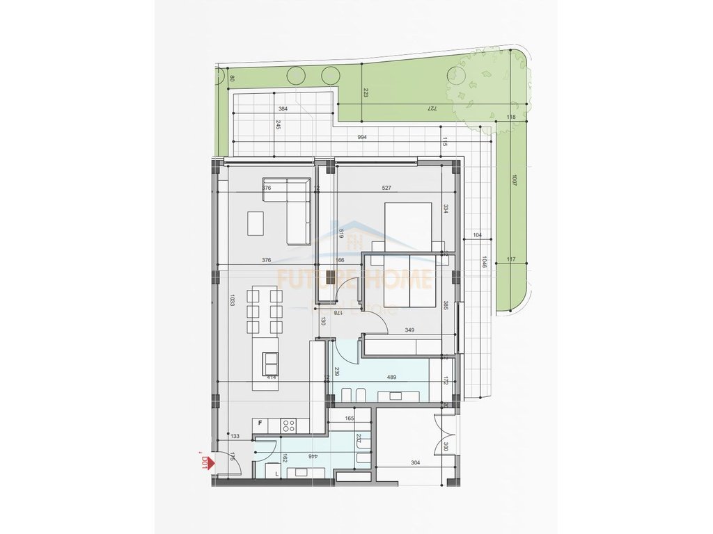
Disponojme per shitje Apartament me oborr ne nje nga Rezidencat me Elitare ne zonen e Farkes.
Ndertesa 3 - kateshe, me arkitekture bashkekohore, pjese e nje kompleksi privat me siguri, mirembajtje dhe cilesi te larte ndertimi.
Apartamenti eshte me pamje nga Liqeni i Farkes, mes gjelberimit dhe ajrit te paster.

Të dhënat kryesore:
• Sipërfaqe Apartamenti Bruto: 122.3 m²
• Sipërfaqe Apartamenti Neto: 108.7 m²
• Sipërfaqe Oborri: 66.2 m²
• Kati: 0

Organizimi i brendshëm:
• Ambjent Ndenje
• Ambjent Ngrenie
• Kuzhine
• 2 Dhoma gjumi
• 2 Tualete

Karakteristika të veçanta:
• Struktura e nderteses do te jete e realizuar prej betoni te armuar
• Projektuar ne normat evropiane te projektimit antisizmik (EUROCODE 8)
• I gjithe perimetri i apartamentit nga jashte, do te jete me fasade te ventiluar
• Izolim termik dhe akustik
• Aspirim
• Parket AC4

Per me shume informacion, na kontaktoni!

  • Referenca:

    ELT60059

  • Tipologji:

    Apartament

  • Statusi i Prones:

    Në Shitje

  • Siperfaqja e brendshme:

    109m 2

  • Siperfaqja bruto:

    122m 2

  • Dhoma:

    2

  • Tualete:

    2

  • Disponueshmeria:

    Available

  • Shikime:

    345

Kontakto agjentin

Dergo mesazh te agjenti

premium bootstrap themes
Open in Maps
Llogarit

Shikoni normën tuaj të interesit