Shitet, Apartament 2+1+2+Verandë, Farka Hills Residences

337,470 €

Detajet e pronës

Referenca

Spot63648

Apartament

Tipologji

2

Dhoma

2

Tualete

128

m 2

Pershkrimi

Farka Hills është një rezidencë unike në Tiranë, e konceptuar për të ofruar më shumë se një shtëpi — një stil jetese në harmoni me natyrën.
E konceptuar si një park për të jetuar, rezidenca ofron qetësi, rrjedhshmëri dhe harmoni, me gjelbërim të përhershëm dhe arkitekturë që “merr frymë” me peizazhin.
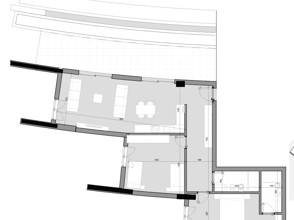
Në këtë kompleks disponojmë për shitje Apartament 2+1+2+Verandë

Informacion mbi apartamentin:
• Sipërfaqja e apartamentit (neto): 113.08 m2
• Sipërfaqja e apartamentit (bruto): 128.15 m2
• Sipërfaqe Verande : 81.17m2
• Kati 6

Organizimi:
• Ambient ndenje
• Ambient gatimi
• 2 Dhoma gjumi
• 2 Tualete
• Verandë

Cilësime të tjera:
• Fazë Grope
• Cilësi e lartë ndërtimi
Një vend ku komoditeti dhe gjithçka që të duhet janë gjithmonë pranë.
Farka Hills është një adresë që bashkon natyrën me qytetin, vetëm 10 minuta nga qendra e Tiranës, e shtrirë në kodrat e Farkës me pamje të drejtpërdrejtë nga liqeni.

• Akses direkt në shëtitoren e Liqenit të Farkës
• Dalje e menjëhershme në Unazën e Madhe
• 10 minuta nga qendra tregtare TEG
• 30,000 m² ndërtim i integruar në hapësira të gjelbra të mirëmbajtura
Për një vizitë në pronë na kontaktoni!

  • Referenca:

    Spot63648

  • Tipologji:

    Apartament

  • Statusi i Prones:

    Në Shitje

  • Siperfaqja e brendshme:

    113m 2

  • Siperfaqja bruto:

    128m 2

  • Dhoma:

    2

  • Tualete:

    2

  • Kat:

    6

  • Disponueshmeria:

    Available

  • Shikime:

    131

Kontakto agjentin

Dergo mesazh te agjenti

premium bootstrap themes
Open in Maps
Llogarit

Shikoni normën tuaj të interesit